Nuestros servicios
Ofrecemos unos servicios profesionales adaptados a sus necesidades
656 350 009

Nuestros servicios
VIVIENDAS CONSTRUCCIÓN TRADICIONAL TPYR
Ponemos a su disposición un catalogo de viviendas tipo, tanto de diseño moderno como tradicional para asi poder contener los costes de producción y poder ofrecerles un abanico de nuevas posibilidades.
Actualizamos la denominación de nuestras viviendas tradicionales, para tenerlas mejor referenciadas. Pasaremos a denominarlas TPYR.
TPYR 80 – Consultar Precio.

Construcción de vivienda unifamiliar diseñada para poder tener dos dormitorios, se puede adaptar tanto al diseño tradicional como al diseño moderno en el desarrollo del proyecto, con una superficie construida total de 80 m2 Construidos.
Planta baja con garaje adosado abierto, cuarto de instalaciones-lavandería, cocina, salón, 2 dormitorios y 1 baño.
Calidades de acabados medios. Acabado fachado Monocapa-Pintura. (Se pueden modificar los acabados a gusto del cliente).
Construcción llave en mano, totalmente terminada y lista para entrar a vivir.
*Todos los diseños aquí expuestos son orientativos, el diseño final se realizará acorde a los gustos de cada cliente y a la tipología de cada parcela.
Incluido en el precio:
– Proyecto básico.
– Proyecto de Ejecución.
– Levantamiento topográfico y estudio geotécnico.
*Solicitar memoria de calidades y acabados.

TPYR 100 – Consultar Precio
Construcción de vivienda unifamiliar diseñada para poder tener Dos/Tres dormitorios, se puede adaptar tanto al diseño tradicional como al diseño moderno en el desarrollo del proyecto, con una superficie construida total de 100 m2 Construidos.
Planta Baja con Instalaciones-Lavandería, Cocina-Salón, 2/3 Dormitorios, 1/2 Baños.
Calidades de acabados medios. Acabado fachado Monocapa-Pintura. (Se pueden modificar los acabados a gusto del cliente).
Construcción llave en mano, totalmente terminada y lista para entrar a vivir.
*Todos los diseños aquí expuestos son orientativos, el diseño final se realizará acorde a los gustos de cada cliente y a la tipología de cada parcela.
Incluido en el precio:
– Proyecto básico.
– Proyecto de Ejecución.
– Levantamiento topográfico y estudio geotécnico.
*Solicitar memoria de calidades y acabados.

TPYR 140 – Consultar Precio
Construcción de vivienda unifamiliar diseñada para poder tener Tres dormitorios, se puede adaptar tanto al diseño tradicional como al diseño moderno en el desarrollo del proyecto, con una superficie construida total de 140 m2 Construidos.
Planta Baja con Instalaciones-Lavandería, Cocina-Salón, 3 dormitorios, 2 baños, Garaje Adosado.
Calidades de acabados medios. Acabado fachado Monocapa-Pintura. (Se pueden modificar los acabados a gusto del cliente).
Construcción llave en mano, totalmente terminada y lista para entrar a vivir.
*Todos los diseños aquí expuestos son orientativos, el diseño final se realizará acorde a los gustos de cada cliente y a la tipología de cada parcela.
Incluido en el precio:
– Proyecto básico.
– Proyecto de Ejecución.
– Levantamiento topográfico y estudio geotécnico.
– Dirección de obra y fin de obra (Arquitecto y Aparejador)
– Coordinación de seguridad y salud.
– Construcción de la vivienda.
*Solicitar memoria de calidades y acabados.

TPYR 160 – Consultar Precio
Construcción de vivienda unifamiliar diseñada para poder tener Tres/Cuatro dormitorios, se puede adaptar tanto al diseño tradicional como al diseño moderno en el desarrollo del proyecto, con una superficie construida total de 160 m2 Construidos.
Planta Baja o (Planta Baja y Primera) con Instalaciones-Lavandería, Cocina-Salón, 3/4 dormitorios uno con vestidor, 2/3 baños y Garaje Adosado Abierto/Cerrado.
Calidades de acabados medios. Acabado fachado Monocapa-Pintura. (Se pueden modificar los acabados a gusto del cliente).
Construcción llave en mano, totalmente terminada y lista para entrar a vivir.
*Todos los diseños aquí expuestos son orientativos, el diseño final se realizará acorde a los gustos de cada cliente y a la tipología de cada parcela.
Incluido en el precio:
– Proyecto básico.
– Proyecto de Ejecución.
– Levantamiento topográfico y estudio geotécnico.
– Dirección de obra y fin de obra (Arquitecto y Aparejador)
– Coordinación de seguridad y salud.
– Construcción de la vivienda.
*Solicitar memoria de calidades y acabados.
VIVIENDAS MODULARES ADAPTABLES MPYR
Deja volar tu Imaginación y nosotros construiremos tu Sueño.
Empezamos un nuevo proyecto en cuanto a la construcción de vivienda, presentando un nuevo concepto de vivienda modular, basada en una construcción en seco para agilizar el tiempo de ejecución in situ de las mismas. Estas viviendas tendrán una denominación MPYR.
Presentamos unos modelos básicos de planta baja que cubren varios ámbitos de viviendas, desde los 32m2 de un básico tipo Estudio a una Vivienda Completa de 150m2, podrán ver nuestros diseños en el lateral izquierdo pulsando sobre cada uno de los diferentes modelos. Trabajamos día a día para poder presentar nuevos diseños en cuanto sea posible.
- En unos meses, presentaremos varios modelos nuevos, adaptados a dos plantas, para abrir un abanico más amplio de posibilidades, en cuanto a diseños y superficies.
- Todos y cada uno de nuestros diseños estandarizados están en continua mejora para poder adaptarse a las nuevas normativas, investigando para mejorar la calidad de los materiales, buscando la eficiencia energética combinándolo con la rapidez de ejecución.
- También cabe la posibilidad de hacer diseños adaptados a las parcelas, ya que entendemos que no todos los terrenos son iguales y cada cual puede tener diversas particularidades, orografía, etc.
- Teniendo eso en cuenta, ejecutaremos el diseño acorde a las necesidades de nuestro cliente, siempre que podamos adaptarnos a las medidas tipo modulares, para así contener los costes de ejecución.
Vivienda modular de 32 m2 es el modelo básico de nuestra nueva gama de viviendas, tienda esta una unidad versátil a la que se le pueden añadir nuevos módulos o realizar modificaciones para poder adaptarla el gusto de cada cliente.
La Vivienda PYR 01 32, está compuesta de 1 Dormitorio, Baño General, Salón-Cocina.


MEMORIA DE CALIDADES:
- Cimentación – Losa Armada 20cms (Pendiente de verificar geotécnico), en caso de tener que ejecutar otro tipo de cimentación se valorará de forma independiente.
- Losa – Forjado Sanitario.
- Estructura perimetral – Hormigón celular.
- Fachada – Varios acabados: Revestimiento cerámico, Panel sándwich o Revestido y Pintado.
- Cubierta- Panel sándwich nervado, sobre estructura ligera.
- Acabados Interiores – Trasdosado cartón-yeso + Pintado mate/Alicatado (baño) – falso techo de cartón-yeso
- Carpintería Exterior – Aluminio con rotura de puente térmico y cristales 4/12/4 bajo emisivos.
- Carpintería de madera – Puerta Lacada blanca en baño y Mueble empotrado en Dormitorio.
- Grifería de Cocina y baños incluida.
- Inodoro, plato de ducha, lavabo y espejo, incluidos.
- Agua Caliente termoeléctrico.
- Preinstalación para radiadores.
- Mobiliario de cocina, con encimera de piedra y electrodomésticos (Vitro, Campana, Horno, Nevera y fregadero)
- Iluminación Led sistema Downlight
Vivienda modular de 85 m2 es el modelo básico de nuestra nueva gama de viviendas, siendo esta una unidad versátil a la que se le pueden añadir nuevos módulos o realizar modificaciones para poder adaptarla el gusto de cada cliente.
La Vivienda PYR 02 85r, está compuesta de 2 Dormitorio, 1 Baño General, 1 Aseo, Salón-Cocina.

Vivienda modular de 85 m2 es el modelo básico de nuestra nueva gama de viviendas, tienda esta una unidad versátil a la que se le pueden añadir nuevos módulos o realizar modificaciones para poder adaptarla el gusto de cada cliente.
La Vivienda PYR 02 85Z, está compuesta de 2 Dormitorio, 1 Baño General, salón-Cocina.


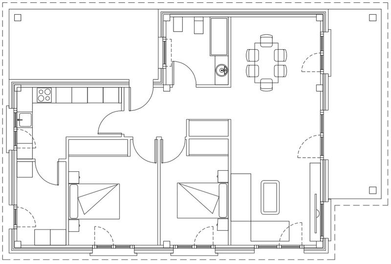
Vivienda modular de 100 m2 es el modelo básico de nuestra nueva gama de viviendas, tienda esta una unidad versátil a la que se le pueden añadir nuevos módulos o realizar modificaciones para poder adaptarla el gusto de cada cliente.
La Vivienda PYR 03 100, está compuesta de 3 Dormitorio, 2 Baños, Salón-Cocina y Lavandería/Cuarto Inst..




Vivienda modular de 100 m2 es el modelo básico de nuestra nueva gama de viviendas, tienda esta una unidad versátil a la que se le pueden añadir nuevos módulos o realizar modificaciones para poder adaptarla el gusto de cada cliente.
La Vivienda PYR 03 100, está compuesta de 3 Dormitorio, 2 Baños, Salón-Cocina y Lavandería/Cuarto Inst..


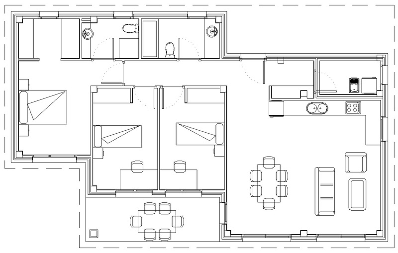
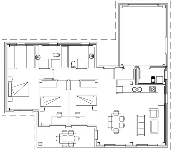
Vivienda modular de 150 m2 es el modelo básico de nuestra nueva gama de viviendas, tienda esta una unidad versátil a la que se le pueden añadir nuevos módulos o realizar modificaciones para poder adaptarla el gusto de cada cliente.
La Vivienda PYR 04 150R, está compuesta de 4 Dormitorio, 2 Baños, Salón-Cocina y Lavandería/Cuarto Inst..



PYRAMID Obras y Proyectos SL
Vigo (Pontevedra)
